對于現場觀看表演和電視直播,視頻系統、照明系統要比場地擴聲系統更加重要,因此,在項目的實際和實施中,視頻和照明系統要優先考慮。

擴聲系統的總體改造方案,系統的音頻控制、傳輸通過Dante網絡構建數字加模擬的混合網,場館內所有音頻信號均匯聚到音頻控制機房進行分發。數字調音臺同樣采用一主一備,主調音臺可搬至場內進行現場調控,并在主席臺區預留音頻接口箱,可接入有線傳聲器、無線傳聲器系統。系統使用時,需要根據不同賽事的使用場景對數字調音臺以及功率放大器進行預設。系統基本框架如圖2所示。

對于像冬奧會這樣重要的賽事,系統的安全性與可靠性極為重要。除注重選用可靠性高的設備外,對于信號傳輸主干網采用光纖傳輸,部分采用模擬線纜,以滿足一些特殊的使用場景。同時,設置點對點的直通路徑進行傳輸,如功能機房與功能機房之間、現場不同區域之間、現場與功能機房之間。這種傳輸路徑穩定、延時小,降低數據傳輸中的丟包問題,故障排查簡單。
系統的配電,根據奧運賽事的需求,均采用雙路市電+ATS+UPS,相關電氣設備安裝于四層音頻控制室?,F有供電方式在市電閃絡時不會對擴聲系統造成影響;ATS開關容量160 A,運行方式為互為備用;UPS電源柜就近安裝于配電柜旁,輸出65 kW,在線運行,可帶柜內全部負荷持續供電30 min。為了保障賽時安全運行,在賽前做好配電柜內所有電氣設備的隱患排查工作,留好備品備件,賽時安排專人對配電柜進行看護。
對于聲場的設計,揚聲器系統既考慮主席臺區的覆蓋,又要考慮整個觀眾區的覆蓋;在揚聲器選型上,要符合重量要輕、體積小、聲壓大等性能,以滿足承重、避免建聲缺陷、提高語言清晰度、避讓視頻照明等其他設備等一系列的相關要求。通過仿真軟件NS-1模擬設計,確定揚聲器數量、吊掛高度、投射角度等,以達到體育建筑設計規范一級指標,聲壓級為105 dB,語音清晰度指數不小于0.5,聲場模擬點位如圖3所示。不同的區域根據實際的面積、縱深覆蓋需求,對線陣列揚聲器的數量、分頻、吊掛角度與高度進行配置。主擴聲揚聲器系統采用14組雙12英寸三分頻無源全頻線陣列揚聲器,吊掛覆蓋整個觀眾區。其中,北側方向共分8組,每組根據覆蓋區域分別由2~8只揚聲器單元組成;東西方向各1組,每組4只揚聲器單元;南側方向共分4組,每組根據覆蓋區域分別由4~8只揚聲器單元組成。揚聲器布置平面圖如圖4所示。以評論員席以及播報席區域為例,由于區域觀眾席第一排至最后一排的高差為15 m,如圖5所示,因此使用了2組線陣列揚聲器進行覆蓋,分別使用了4只、7只揚聲器單元,其吊掛角度、高度分別為-7°、20.5 m,-2°、17.9 m,如圖6所示。



另外,在體育工藝系統中,采用了比賽設備集成管理系統,通過比賽設備集成管理平臺,可將場地擴聲系統、大屏顯示系統、賽事運營系統、場地燈光系統以及場地投影系統進行集成互聯,通過將各系統集成聯動,滿足不同使用場景下的功能需求,增加了系統使用運行的方便性、整體性。
系統的設計和實施受場地裝修的限制,既要照顧整個場館美觀,又要滿足場館內功能的使用要求。因此,對于系統方案的實施,隨時與相關方溝通,不斷進行調整優化。
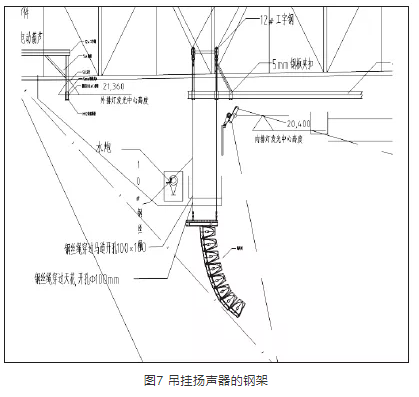
(1)揚聲器的吊掛
在揚聲器系統吊掛過程中,由于首都體育館保留了原有大頂球型網架結構、馬道,在球型網架的結構下還有鋁板造型結構以及龍骨,而揚聲器系統的吊掛點位于大廳頂層鋁板之上,需要穿過結構下懸桿、鋁板和鋁板固定龍骨層,避開燈光線路以及馬道,并且每一組線陣列揚聲器的安裝位置不相同,需要精確的定位,以滿足現場覆蓋的范圍及角度?;谶@種情況,在進行了實地勘察測量后,經各方討論,最后選擇了單獨設計安裝鋼結構吊點的吊掛方式。根據現場不同的位置,定制吊掛揚聲器的鋼架,如圖7、圖8、圖9所示,吊掛高度可以在鋼架上調整。這一結構不僅可以避開場地照明光路等,還可以應對施工過程中馬道等一些設施的更改。



(2)投影幕布對揚聲器系統的影響
比賽場地上空設置有巨大的投影幕布,面積與比賽場地近乎一樣。為此,對場地擴聲系統提出了多種方案。其中,一種方案是調整揚聲器的覆蓋角度,以避免因投影幕布反射形成的回聲,但受整體環境所限,難以實現。另一種方案是考慮采用透聲幕布,揚聲器吊掛在透聲幕布上方,但會影響投影效果。在實施中,最初采用透聲幕布,經過多方溝通,方案幾經調整,在安裝位置與投影幕布之間取得平衡,最終采取分段式幕布加揚聲器吊掛調整,將揚聲器吊掛與各幕布之間,并選用8只小尺寸、高聲壓的點聲源揚聲器P12,既不會影響投影效果,也可滿足聲場覆蓋,達到設計指標。
(3)音頻線纜的敷設
對于音頻線纜的敷設,由于首都體育館初修建于1968年,管線橋架設計相對復雜繁瑣,場館1層至4層垂直橋架沒有完全貫通,4層的水平橋架也沒有聯通,大大增加了音視頻傳輸線纜敷設的難度,同時大大增加了音頻線纜的敷設長度。因此,在現場的音視頻插座箱與四層音控室之間,采用光纜及中繼設備進行傳輸,包括調音臺接口箱、交換機、音頻光端機等。通過數模結合的傳輸方式,解決了信號傳輸線纜過長的問題,并大大增加了信號傳輸的可靠性與安全性,滿足了奧運賽事期間不同賽事的需求,2022年北京冬季奧運會組委會技術組可根據不同使用場景進行切換。
施工完畢后,進行了現場實測,測點如圖10所示。經現場測試,擴聲系統聲壓級可基本達到設計值,其他測量結果見圖11、表2—表4。測試結果反映,該項目達到設計目標及行業相關標準指標。



首都體育館改造項目的方案設計與實施,體現了簡約而不簡單的理念,具有可靠性、實用性,特別使在前端固定設備的布置、安裝方面,不斷深化設計;對于控制處理部分的設計,充分滿足前端固定安裝設備至機房控制操作設備之間的傳輸、處理的需求,盡量簡化機房控制設備的操作繁瑣程度,采取集成化的控制方案。系統調試、測試后,運行穩定,清晰度得到用戶的認可,并通過驗收。經過測試賽的應用,證明這項設計完全達到要求。